Biệt thự 3 tầng ở Bình Trưng Đông Quận 2
Loading...
cokhidaitin.vn
cokhidaitin.vn
cokhidaitin.vn

Biệt thự 3 tầng ở Bình Trưng Đông Quận 2

 Chủ Đầu Tư:  Nhà đất bất động sản Trung Hiếu

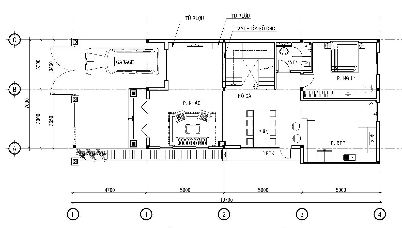
 Diện tích xây dựng: 56m2 ( 7mx8m )

 Diện tích đất: 56m2 ( 7mx8m )

 Quy mô công trình : khu nhà biệt thự 1 trệt 3 lầu

 Công năng tiện ích: kinh doanh hoặc sang nhượng nhà đất

 Năm thiết kế: 2019

tư vấn báo giá
  • Chia sẻ qua viber bài: Biệt thự 3 tầng ở Bình Trưng Đông Quận 2
  • Chia sẻ qua reddit bài:Biệt thự 3 tầng ở Bình Trưng Đông Quận 2

MÔ TẢ CHI TIẾT

Là căn biệt thự 3 tầng có lối thiết kế theo xu hướng hiện đại nhưng vẫn hòa vào thiên nhiên, các chi tiết kết hợp hài hòa tạo ra sự khác biệt, sang trọng ngay từ cái nhìn bên ngoài.

Tọa lạc trong con hẻm nhỏ Phường Bình Trưng Đông Quận 2 TP.Hồ Chí Minh. Hồ sơ xin phép xây dựng quận 2 được vẽ tối đa diện tích trước đó đã góp phần giúp kiến trúc sư thỏa mái hơn trong việc lên ý tưởng thiết kế kiến trúc,ngôi biệt thự 3 tầng. Sân vườn bao xung quanh tạo cảnh núi đồi như nằm trên cao nguyên Đà Lạt mông mơ. Cao độ nền biệt thự quân 2 được nâng lên tăng phần lấy gió cho phòng khách.

Nhìn từ bên ngoài, người ta có thể thấy ngay được sự kết hợp độc đáo giữa các loại vật liệu, chi tiết thiết kế tạo nên những điểm nhấn rất đáng chú ý. Phần bên dưới được ốp bằng loại đá cao cấp nhằm tạo nên nét sang trọng. Song song đó, loại gạch đỏ được sử dụng ở các mái kiểu ngay cửa ra vào, ban công và một phần trên cùng của mái nhà tạo điểm nổi bật của màu tường trắng xung quanh. Ngoài ra, việc sử dụng mái ngói kiểu Nhật đã tạo thêm phần sang trọng, hiện đại cho căn biệt thự này.

Bên cạnh các thiết kế hiện đại khi nhìn căn biệt thự ở hướng chính diện, chúng ta có thể nhìn thấy được những chi tiết rất "cổ điển" thông qua chi tiết mái ngói ngói nhấp nhô trên các cửa sổ ở hai bên của ngôi nhà. Đúng theo lối thiết kế hiện đại hòa vào thiên nhiên, các ban công hai bên và phí trước ngôi biệt thự sẽ là nơi những thành viên trong gia đình co thể hít thở không khí tươi mát của khí trời vào những buổi sáng sớm hoặc khi đêm về.

Gara nằm ở vị trí bên trái và thiết kế luôn trong nhà có cổng riêng giúp việc di chuyển xe vào nhà được thuận tiện và an toàn.

 

Điểm đặc biệt nhất trong thiết kế của căn biệt thự này chính là năm ở các cửa kính và cửa sổ xung quanh ngôi nhà, qua đó giúp ngôi nhà luôn tiếp nhận đầy đủ ánh sáng tự nhiên từ bên ngoài vào. Ngoài ra, việc bố trí nhiều cửa sổ như vậy cũng giúp việc lấy gió tự nhiên trở nên dễ dàng hơn, chỉ việc mở tung các sửa sổ sẽ cho phép chủ nhân của căn biệt thự đón các luồng gió mát lạnh từ mọi hướng.

Toàn bộ các khung cửa của căn biệt thự đều được sử dụng chất liệu gỗ cao cấp cho độ bền lâu dài theo thời gian, màu sắc hài hoàn với toàn bộ thiết kế sang trọng.

Nhìn vào tổng thể thiết kế của ngôi biệt thự, chúng ta thấy được chủ nhân của ngôi nhà đã muốn tận dụng tối đa diện tích nhưng vẫn dành riêng những lối đi nhỏ với những mảng cỏ để vừa giúp việc di chuyển trong khuôn viên nhà thuận tiện nhất, đồng thời có không gian xanh tạo sự thoải mái. Với thiết kế này, nó sẽ là nơi các thành viên trong nhà có thể đi dạo thư giản vào buổi sáng sớm hoặc sau một ngày làm việc mệt mỏi.

Trên sân thượng của ngôi biệt thự vẫn có một không gian vừa đủ với giàn sắt phía trên, đây là nơi thích hợp cho việc trồng cây xanh, loại dây leo, qua đó có thể tạo nên một khu vườn thu nhỏ ngay phía bên ngôi nhà.

Tính hiện đại, sang trọng của căn biệt thự này không chỉ nằm ở thiết kế bên ngoài, mà khi nhìn vào phần nội thất bên trong chúng ta vẫn có thể thấy rất rõ điều đó. Với chi tiết trần thạch cao trắng tinh tế, kết hợp hệ thống đèn led chiếu sáng tô điểm thêm sự lộng lẫy của ngôi nhà.

Đồ dùng nội thất và một vài chi tiết bằng gỗ, với tông màu hài hòa góp phần tạo thêm sự sang trọng cho không gian bên trong của ngôi nhà.

Ở vị trí cầu thang của căn biệt thự, một mảng trang trí với gạch ốp và các bình hoa đặt kế bên tuy đơn giản nhưng lại là nét chấm tạo điểm nhấn rất tinh tế, có tính thẩm mỹ cao.

 

DỰ ÁN LIÊN QUAN

Công Trình Trường Mầm Non

Điểm nổi bật của thiết kế là những mái nhà xanh cong cong chạy dài liền tạo ra ba sân vui chơi cho trẻ. Từ sân chơi không những thầy cô giáo mà cả trẻ cũng có thể chạy nhảy dễ dàng lên phía mái nhà trồng rau – nơi có độ dốc cao dần

Công Trình Nhà Văn Phòng

Được xây dựng dựa trên ý tưởng về một công trình không chỉ đơn thuần là một tòa nhà văn phòng hạng A với những tiêu chuẩn quốc tế về xây dựng, kiến trúc, dịch vụ…mà còn mang lại những tiên ích đặc biệt khác hướng tới con người.

Công Trình Khách Sạn

Với các đội hiện có: đội nề, đội điện nước, đội sơn nước, đội sắt, đội thạch cao…có thể thi công tất cả các dự án kiến trúc, nhà ở gia đình cao cấp có mức độ phức tạp cao. Bên cạnh đó, chúng tôi có thể sản xuất, lắp đặt mọi thiết bị trong không gian nội thất như: trần giả, xây trát, sơn bả, sản xuất đồ gỗ tự nhiên và công nghiệp, làm sắt thép, inox, nhôm kính, cửa thủy lực, cửa cuốn,…

Công trình biệt thự nhà vườn

Công trình biệt thự nhà vườn tạo ra môi trường sống xanh, đem lại cuộc sống tiện nghi và thoải mái cho cả gia đình

Sở hữu bản vẽ thiết kế cho căn nhà mơ ước

Dưới đây là bản vẽ nhà cấp 4 mang vẻ đẹp của 1 mẫu thiết kế biệt thự đẹp, mời các bạn tham khảo.. Mẫu thiết kế nhà cấp 4 đẹp như biệt thự dưới đây vừa mang phong cách hiện đại vừa có những nét rất truyền thống với mái ngói đỏ. Hiện nay, các mẫu nhà cấp 4 đẹp 1 tầng đang là lựa chọn của rất nhiều gia đình ở cả nông thôn và thành thị.

Mẫu thiết kế nhà phố đẹp 3 tầng

Sở hữu lô đất mặt phố ngang 5m dài hơn 23m; Chị Mỹ mong muốn xây dựng mẫu thiết kế nhà phố 2 tầng 1 tum đơn giản. Với chi phí tầm khoảng 1 tỷ đến 1.2 tỷ; Có không gian tầng trệt trước mắt cho thuê kinh doanh. Vì chị hiện tại là một giáo viên công chức ngành thư viện còn bận bịu công việc. Nhưng cần xây nhà phố 2 tầng 1 tum hiện đại 5x20m mặt tiền trục lộ đường lớn sau này khi về hưu sẽ buôn bán.

Thiết kế biệt thự vườn 1 tầng đẹp, đầy đủ công năng

Thiết kế biệt thự vườn 1 tầng đẹp thường được lựa chọn để xây dựng trên những khuôn viên đất rộng, vuông. Thay vì những mẫu nhà ống, nhà phố hạn chế về diện tích, cao tầng khó đi lại thì phương án xây dựng không gian thân thiện với môi trường, dễ sử dụng và thuận tiện này được khá nhiều khách hàng ưa thích. Bài viết dưới đây chúng tôi xin giới thiệu đến mẫu biệt thự vườn 1 tầng đẹp mắt với nhiều không gian phòng ốc đáp ứng nhu cầu của gia chủ.

Mẫu thiết kế nhà phố đẹp 2 tầng

Sở hữu lô đất mặt phố ngang 5m dài hơn 23m; Chị Mỹ mong muốn xây dựng mẫu thiết kế nhà phố 2 tầng 1 tum đơn giản. Với chi phí tầm khoảng 1 tỷ đến 1.2 tỷ; Có không gian tầng trệt trước mắt cho thuê kinh doanh. Vì chị hiện tại là một giáo viên công chức ngành thư viện còn bận bịu công việc. Nhưng cần xây nhà phố 2 tầng 1 tum hiện đại 5x20m mặt tiền trục lộ đường lớn sau này khi về hưu sẽ buôn bán.